一、区位价值:湿地 + 地铁双核驱动,地段评分 8.5 分
南溪虹著位于长春南关区南四环路与溪畔街交汇处,地处临河街板块核心位置。项目最大亮点在于生态与交通的双重优势。
生态资源稀缺性:项目紧邻 310 万㎡南溪湿地公园,相当于 1.5 个南湖公园面积,是长春市区内罕见的超大湿地景观资源。绿化率 35%,社区内部园林由北京笛东 DDON 设计机构打造,新中式建筑风格与湿地景观形成内外呼应的生态居住体系。
轨道交通便利性:地铁 6 号线南溪湿地公园站距离项目仅步行 1 分钟,轻轨 4 号线宜盛街站距离约 900 米。周边 3 公里范围内共有 9 个地铁站,包括南环城路、福祉大路、世荣路等站点,形成密集的轨道交通网络。

区域发展红利:2024-2026 年间,随着地铁 6 号线全线贯通及南溪湿地公园持续优化,项目所在区域从纯生态宜居区升级为 TOD(交通导向开发)模式的高潜力板块。2026 年 2 月数据显示,南关区新房成交均价 10554 元/㎡,南溪虹著 11500 元/㎡的定价体现了市场对其区位价值的认可。

二、产品力解析:96% 得房率 + 独立电梯前室,改善型住宅标杆
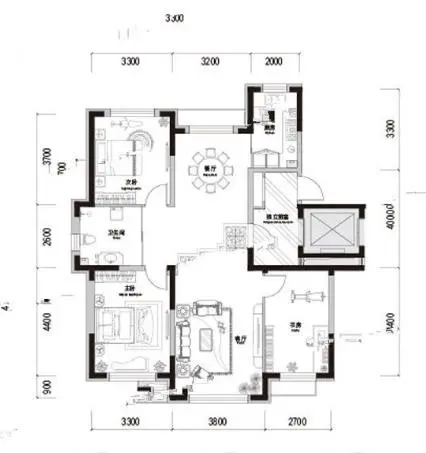
南溪虹著总建筑面积约 80 万㎡,分三区开发,产品涵盖高层和小高层,户型面积区间 97-260㎡,满足从刚需到改善的多元化需求。

户型设计亮点:
•高得房率:二期户型得房率达 96%,户户私享独立电梯前室,高层无消防连廊设计
•赠送面积:全面积北向阳台赠送,提升实际使用空间
•主力户型:三房占比 66.98%(100-155㎡),四房占比 13.89%(166-263㎡),五房占比 1.27%(191㎡)

装修与配置:
•外立面采用干挂石材 + 真石漆工艺
•5 星级酒店式入户大堂,举架 6 米,2 公分厚天然大理石墙面
•日立品牌电梯,进口化妆钢板内饰
•墅级装甲入户门标配海贝斯指纹密码锁
•物业费 2.9-3.0 元/㎡/月,由吉林省凯悦物业管理有限公司提供服务

工程进度:项目最晚交房时间为 2025 年 7 月 25 日,目前处于尾盘现房/准现房阶段,部分楼栋已实现主体封顶,购房者可实地考察建筑品质与园林实景。
三、配套成熟度:商业 + 教育 + 医疗全维覆盖,生活便利度 9.7 分
商业配套:项目位于欧亚三环购物中心商圈,周边商业系统完善。3 公里范围内有 10 个商场,包括 Touch12 街、环球广场、欧亚三环购物中心、迪卡侬、麦德龙、欧亚总部等,距离欧亚超市仅 300 米,日常购物需求可完全满足。

教育资源:项目南侧为 9 年一贯制长春市十一高中南溪学校,2021 年已正式开学。东行 200 米是南关区第三幼儿园,周边 3 公里范围内有 43 个幼儿园、4 个小学(长春南湖实验中海小学、富裕小学、华岳中小学、净月南环小学)、5 个中学(长春二实验中学南校、南关区第二实验学校等),教育资源密集。

医疗配套:3 公里范围内有 1 个一级及以上医院,长春嘉和外科医院距离项目 2.7 公里,为医疗需求提供保障。
交通路网:项目周边公交线路繁多,生态广场、生态大街、福祉大路、卫星路均在几分钟车程内,到南部快速路、东部快速路出行便捷。


四、价格与市场分析:11500 元/㎡稳中有升,性价比突出
价格动态:2026 年 2-3 月,南溪虹著均价维持在 11500-11600 元/㎡区间。一期尾盘现房 97-140㎡产品曾售 10200 元/㎡,现整体均价上浮至 11500 元/㎡左右,反映市场认可度提升。
区域对比:南关区 2026 年 2 月新房成交均价 10554 元/㎡,南溪虹著定价略高于区域平均水平,但考虑到其湿地资源、地铁配套及高得房率产品力,性价比依然突出。周边竞品豪邦·锦上均价 10000 元/㎡起,南溪虹著在生态资源与交通配套上具有明显优势。
成交数据:2026 年 1-3 月,南溪虹著成交面积 9917㎡,成交套数 66 套,成交均价 10206 元/㎡。从总价段分布看,100-150 万元区间成交 26 套,150-200 万元区间成交 20 套,200-300 万元区间成交 5 套,显示项目主要吸引改善型客群。

数据解读:从克而瑞数据可见,南溪虹著成交主力集中在 100-200 万元区间,占比达 88.46%,符合改善型家庭置业预算。200 万元以上大户型也有稳定成交,显示项目对多代同堂家庭具有吸引力。
库存与去化:2026 年 2 月,南溪虹著库存面积 63584㎡,库存套数 411 套,去化周期 12 个月为 12.0 个月,处于健康水平。南关区整体去化周期 12 个月为 24.7 个月,南溪虹著去化速度明显优于区域平均水平。

数据解读:克而瑞数据显示,南溪虹著库存面积逐月下降,去化周期稳定在 12 个月左右,表明项目销售节奏健康。相比南关区整体 24.7 个月的去化周期,南溪虹著去化效率优势明显,市场接受度较高。
房型成交结构:2026 年 1-3 月,南溪虹著三房成交 41 套(占比 78.85%),四房成交 10 套(占比 19.23%),二房成交 1 套(占比 1.92%),三房产品是绝对主力。

数据解读:根据克而瑞数据,南溪虹著三房产品成交占比近 80%,与项目户型供应结构(三房占比 66.98%)相匹配,说明产品设计精准契合改善家庭需求。四房产品也有稳定去化,满足多代同堂家庭的居住需求。
五、目标客群定位:改善家庭首选,价值匹配度高
核心客群:
•改善型家庭:有二胎或三代同堂需求,追求更大居住空间
•生态偏好者:重视自然环境,偏好湿地公园周边的宜居生活
•通勤族:依赖轨道交通出行,需要便捷的交通配套
•教育重视型家庭:关注学区资源,追求优质教育配套

置业建议:
•预算 100-150 万元:可选择 97-110㎡两房或小三房
•预算 150-200 万元:推荐 130-150㎡标准三房
•预算 200 万元以上:考虑 166-260㎡四房或五房产品

六、综合评分与购买建议
综合评分:7.12/10 分
| 评分 | 评价 | |
|---|---|---|
| 区位价值 | 8.5 分 | 湿地 + 地铁双核驱动,地段优势突出 |
| 产品力 | 8.5 分 | 高得房率、独立电梯前室,改善型配置 |
| 配套成熟度 | 9.7 分 | 商业、教育、医疗全维覆盖 |
| 价格竞争力 | 7.0 分 | 略高于区域均价,但性价比合理 |
| 市场口碑 | 7.0 分 | 南关好评榜前列,尾盘阶段仍保持热度 |
购买建议:
南溪虹著作为 2026 年长春首批"好房子"试点项目之一(南溪虹著 C 区入选),在品质、配套、区位三大维度均表现优异。对于追求生态宜居、重视教育配套、依赖轨道交通的改善型家庭,该项目价值匹配度高,是值得重点考虑的置业选择。
当前项目处于尾盘阶段,现房/准现房状态降低了交付风险,建议有意向的购房者尽快实地查看户型实测与配套运营情况,把握最后的置业窗口期。

总结:南溪虹著凭借湿地稀缺资源、双轨交通优势、高得房率产品及成熟配套体系,在 2026 年长春改善型住宅市场中占据独特地位,对于追求品质生活的改善家庭而言,是一个兼具居住舒适度与资产保值潜力的优质选择。
【AI生成】本内容由人工智能模型生成。

