当前位置:
新城樾风华绿樾园 3室 2厅 1卫 117.00平 普装 95.00万元
售价
95万元
约8119.00元/㎡
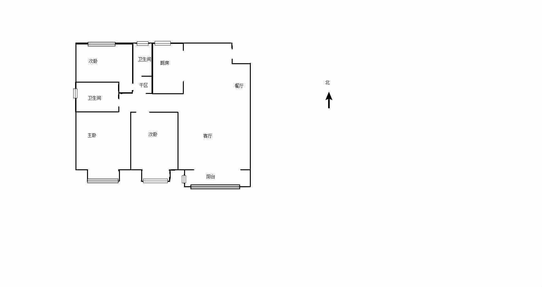
户型
3室2厅1卫
25/26层
建筑面积
117m²
--/板楼
朝向
南北
普装
克而瑞好房评测 新城樾风华绿樾园 3室 2厅 1卫 117.00平 普装 95.00万元
亮点综述
评测时间:2025年12月01日
该小区综合表现处于市场主流水平,整体居住密度适中,绿化环境基本达标,能够提供一定的公共活动空间。停车位配置基本满足需求,但高峰时段可能略显紧张。建筑外立面及公共设施维护状况尚可。物业服务团队能够履行日常保洁、安保、报修等基本职责,响应速度处于可接受范围。生活便利性方面,公共交通网络覆盖尚可,周边基础商业配套能满足日常采买需求。教育资源方面,周边有幼儿园资源。医疗资源方面,周边有专科医院。从市场表现看,该小区二手房成交价在过去一年涨幅与区域大盘基本持平,成交套数在板块内排名中等,市场认可度尚可,是预算有限下的务实选择。
同小区其他在售房源
加载更多 >>
AI推荐理由
?
亮点综述
该小区综合表现处于市场主流水平,整体居住密度适中,绿化环境基本达标,能够提供一定的公共活动空间。停车位配置基本满足需求,但高峰时段可能略显紧张。建筑外立面及公共设施维护状况尚可。物业服务团队能够履行日常保洁、安保、报修等基本职责,响应速度处于可接受范围。生活便利性方面,公共交通网络覆盖尚可,周边基础商业配套能满足日常采买需求。教育资源方面,周边有幼儿园资源。医疗资源方面,周边有专科医院。从市场表现看,该小区二手房成交价在过去一年涨幅与区域大盘基本持平,成交套数在板块内排名中等,市场认可度尚可,是预算有限下的务实选择。
周边信息
