当前位置:
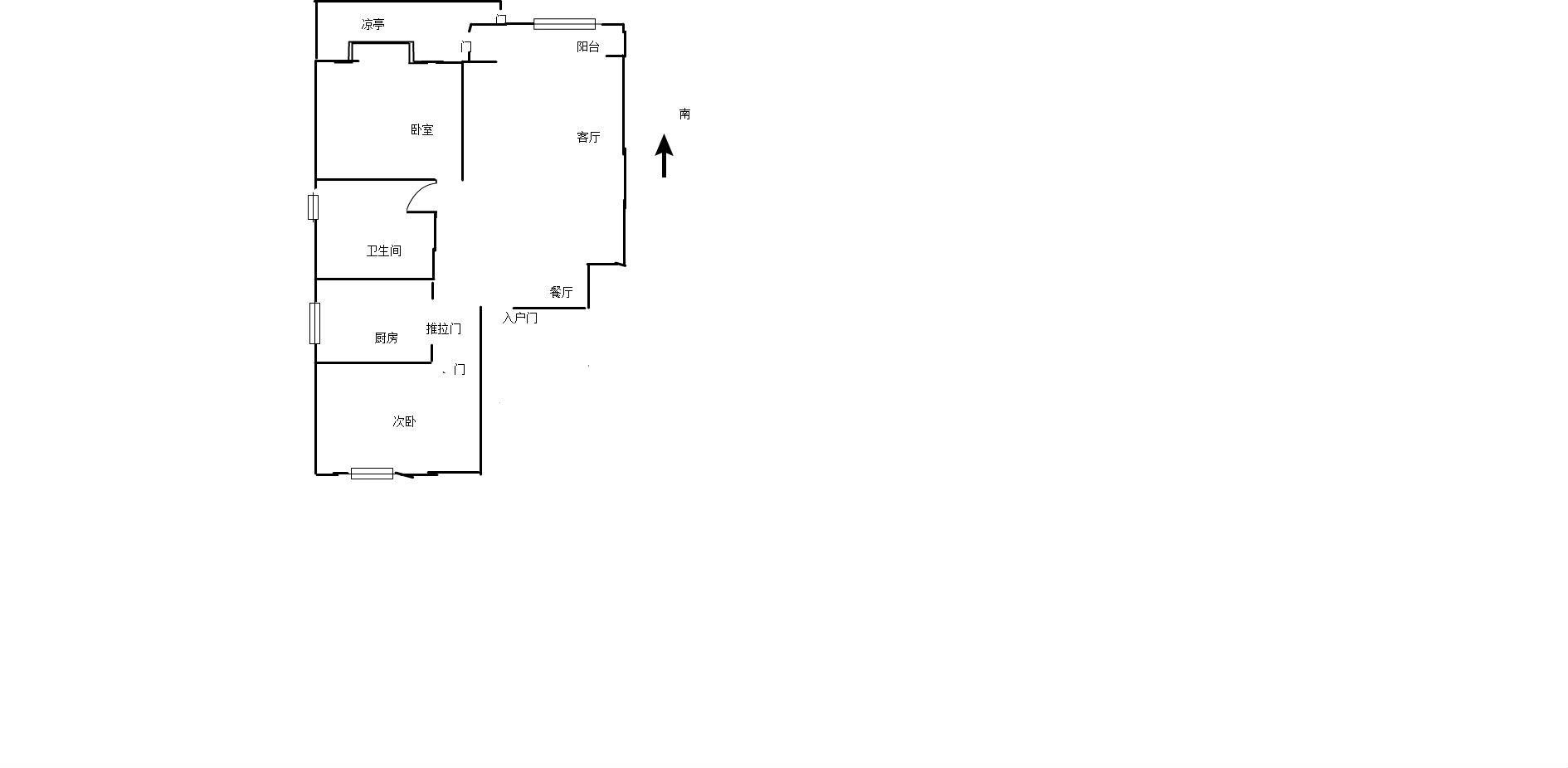
樾风华碧樾园 2室2厅1卫 78平 精装
售价
95万元
约12179.00元/㎡
户型
2室2厅1卫
1/7层
建筑面积
78m²
--/--
朝向
南北
精装
克而瑞好房评测 樾风华碧樾园 2室2厅1卫 78平 精装
亮点综述
评测时间:2025年12月01日
该小区综合表现处于市场主流水平。小区建筑布局合理,公共空间充足,内部园林环境整洁。物业服务专业高效,社区维护良好。生活便利性能够满足基本日常需求,公共交通网络较为发达,商业配套完善,教育资源相对丰富,医疗配套基本齐全。市场口碑呈现中性偏正面态势,展现出一定的保值能力和市场认可度。整体而言,该小区在品质、服务、便利性和市场表现上达到了均衡的水准。
同小区其他在售房源
加载更多 >>
AI推荐理由
?
亮点综述
该小区综合表现处于市场主流水平。小区建筑布局合理,公共空间充足,内部园林环境整洁。物业服务专业高效,社区维护良好。生活便利性能够满足基本日常需求,公共交通网络较为发达,商业配套完善,教育资源相对丰富,医疗配套基本齐全。市场口碑呈现中性偏正面态势,展现出一定的保值能力和市场认可度。整体而言,该小区在品质、服务、便利性和市场表现上达到了均衡的水准。
户型信息
周边信息
