当前位置:
北蒙三小区,黄金三楼双南双阳台,电梯已经在使用了
售价
428万元
约87364.00元/㎡
户型
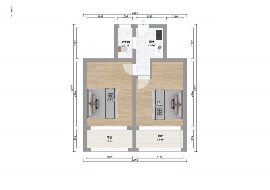
2室1厅1卫
3/7层
建筑面积
48.99m²
--/--
朝向
朝南
精装
克而瑞好房评测 北蒙三小区,黄金三楼双南双阳台,电梯已经在使用了
亮点综述
评测时间:2025年12月01日
该小区综合表现良好,属于市场主流中的良好水平。小区容积率适中,绿化环境良好,楼栋布局合理,公共空间较为充裕,内部环境整洁,居住舒适度较高。物业服务水平良好,服务专业高效,安保、保洁、维修响应及时,社区管理有序。生活便利性表现突出,公共交通网络发达,商业配套丰富,教育资源充足,医疗资源便利。市场口碑呈现中性偏正面态势,二手房成交价走势与周边市场平均水平基本持平或小幅跟涨,展现出一定的保值能力,成交套数在板块内排名靠前,反映出一定的市场活跃度。
点评资讯
AI推荐理由
?
亮点综述
该小区综合表现良好,属于市场主流中的良好水平。小区容积率适中,绿化环境良好,楼栋布局合理,公共空间较为充裕,内部环境整洁,居住舒适度较高。物业服务水平良好,服务专业高效,安保、保洁、维修响应及时,社区管理有序。生活便利性表现突出,公共交通网络发达,商业配套丰富,教育资源充足,医疗资源便利。市场口碑呈现中性偏正面态势,二手房成交价走势与周边市场平均水平基本持平或小幅跟涨,展现出一定的保值能力,成交套数在板块内排名靠前,反映出一定的市场活跃度。
户型信息
1室0厅0卫
建筑面积 31.3㎡
周边信息
