当前位置:
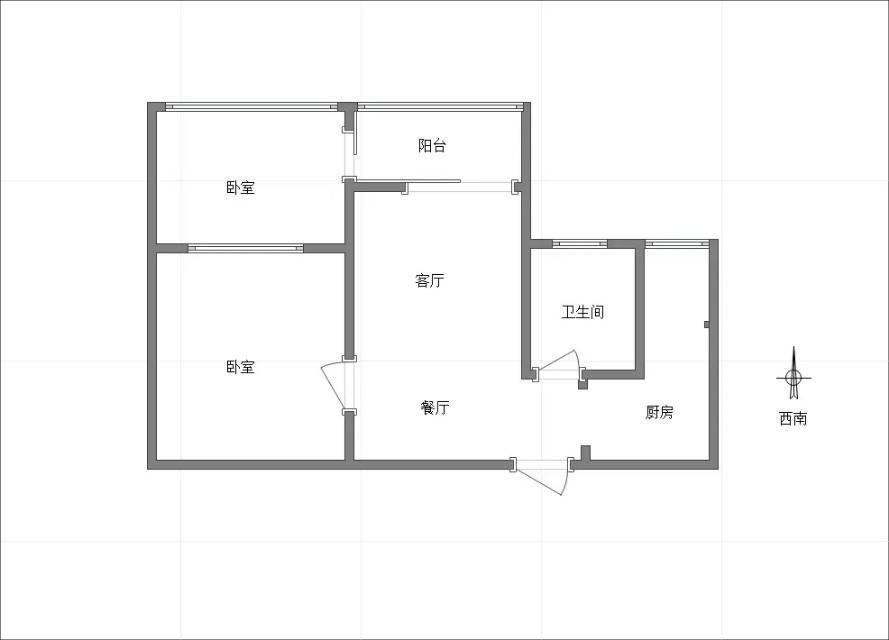
蜂巢小区(余松路) 2室2厅1卫 56.32平 精装
售价
28万元
约4971.59元/㎡
户型
2室2厅1卫
5/23层
建筑面积
56.32m²
--/--
朝向
朝南
精装
克而瑞好房评测 蜂巢小区(余松路) 2室2厅1卫 56.32平 精装
亮点综述
评测时间:2025年12月01日
该小区综合表现处于市场主流中的良好水平。小区容积率较低,建筑布局宽松,居住密度舒适。绿化环境经过精心设计,植被丰富且养护得当。物业公司服务团队能履行日常保洁、安保、报修等基本职责,响应速度在可接受范围内。生活便利性表现卓越,公共交通网络发达,商业配套丰富多样,教育资源充足,医疗资源优质且便民可达。市场数据显示,该小区二手房成交价涨幅与区域大盘基本持平,成交活跃度中等,业主评价总体中性偏正面,是预算有限下的务实选择。
加载更多 >>
AI推荐理由
?
亮点综述
该小区综合表现处于市场主流中的良好水平。小区容积率较低,建筑布局宽松,居住密度舒适。绿化环境经过精心设计,植被丰富且养护得当。物业公司服务团队能履行日常保洁、安保、报修等基本职责,响应速度在可接受范围内。生活便利性表现卓越,公共交通网络发达,商业配套丰富多样,教育资源充足,医疗资源优质且便民可达。市场数据显示,该小区二手房成交价涨幅与区域大盘基本持平,成交活跃度中等,业主评价总体中性偏正面,是预算有限下的务实选择。
户型信息
周边信息
