当前位置:
32万买南岸茶园新区 电梯精装3房 恒大同景国际城
售价
32万元
约4187.39元/㎡
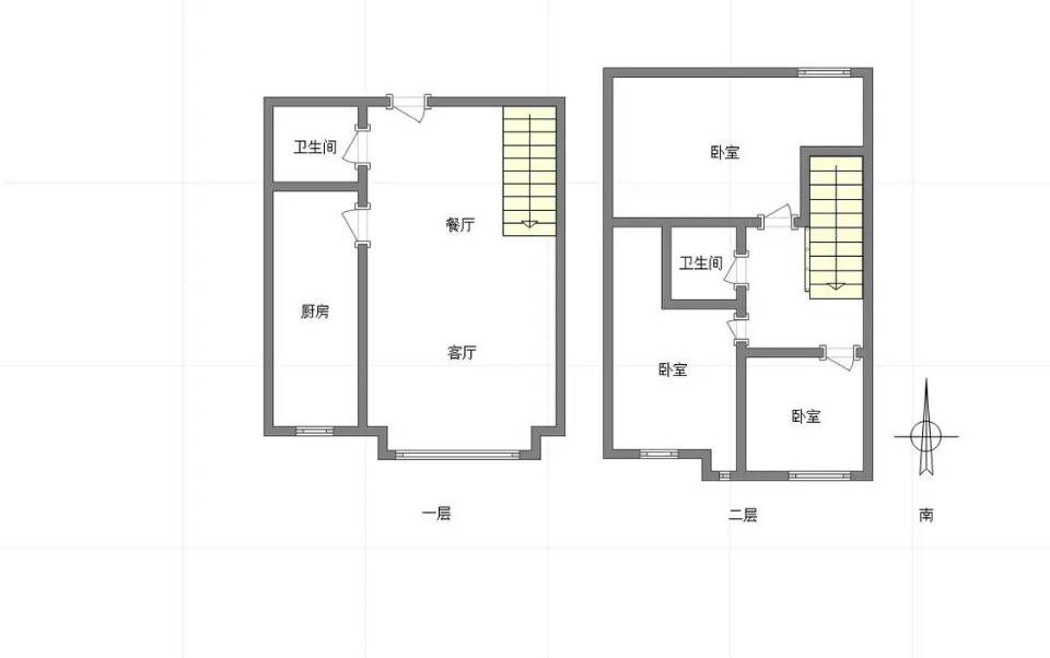
户型
3室2厅2卫
4/16层
建筑面积
76.42m²
--/--
朝向
朝南
精装
克而瑞好房评测 32万买南岸茶园新区 电梯精装3房 恒大同景国际城
亮点综述
评测时间:2025年12月01日
该小区综合表现属于市场主流中的良好水平。小区容积率偏高,但绿化环境尚可,楼栋布局较为紧凑,公共空间基本满足需求,内部环境维护得较为整洁。物业服务水平处于市场主流标准,能够履行基本的服务职责,社区日常管理有序。生活便利性表现良好,公共交通基础具备,周边商业、教育、医疗等日常配套相对齐全,能够支撑居民的日常生活需要。市场口碑呈现中性偏正面态势,二手房成交在区域内有一定活跃度,价格走势与周边市场基本同步,展现出一定的资产保值能力。
点评资讯
AI推荐理由
?
亮点综述
该小区综合表现属于市场主流中的良好水平。小区容积率偏高,但绿化环境尚可,楼栋布局较为紧凑,公共空间基本满足需求,内部环境维护得较为整洁。物业服务水平处于市场主流标准,能够履行基本的服务职责,社区日常管理有序。生活便利性表现良好,公共交通基础具备,周边商业、教育、医疗等日常配套相对齐全,能够支撑居民的日常生活需要。市场口碑呈现中性偏正面态势,二手房成交在区域内有一定活跃度,价格走势与周边市场基本同步,展现出一定的资产保值能力。
户型信息
1室0厅0卫
建筑面积 43.07㎡
周边信息
