搜索
登录
当前位置:
克而瑞好房点评网
>
独家评测
>
二手房评测
>
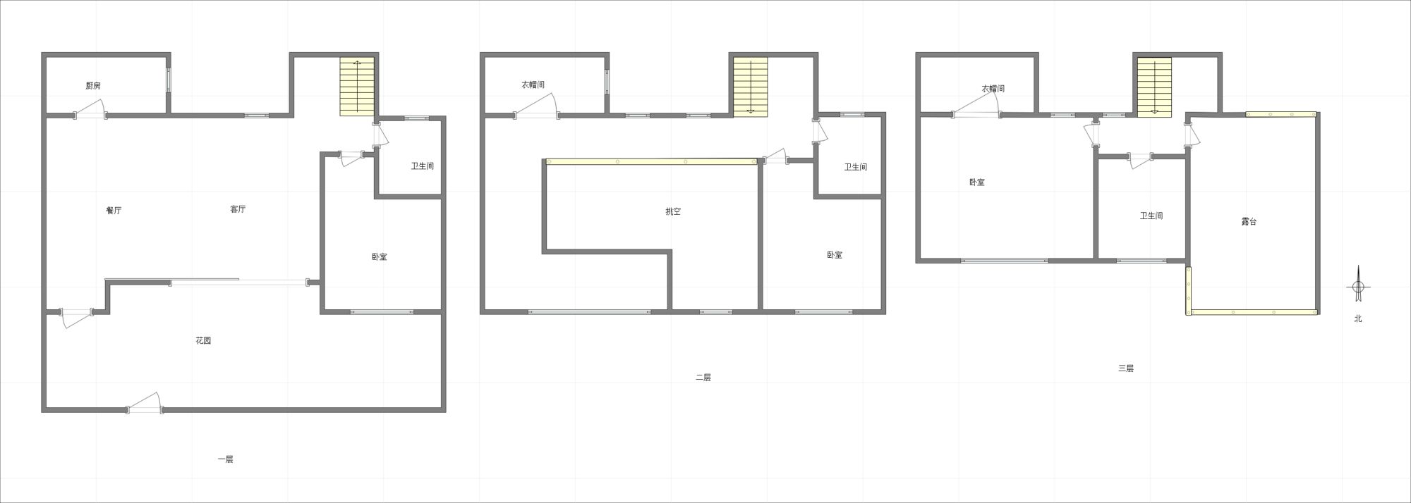
华宇锦绣玺岸 5室3厅3卫 164平 精装
小区首页
专业评测
点评文章
在售房源
一房一价
评测对比
华宇锦绣玺岸 5室3厅3卫 164平 精装
售价
285
万元
约17378.05元/㎡
户型
5
室
3
厅
3
卫
1/1层
建筑面积
164
m²
--/--
朝向
朝南
毛坯
同小区其他在售房源
华宇锦绣玺岸 5室3厅3卫 164平 精装
280
万
17073.2元/m²
一线江景 !!近古镇 近万达龙湖 滨江路次新小区 业主安心卖
96
万
9504.95元/m²
加载更多 >>
AI推荐理由
?
亮点综述
周边信息