当前位置:
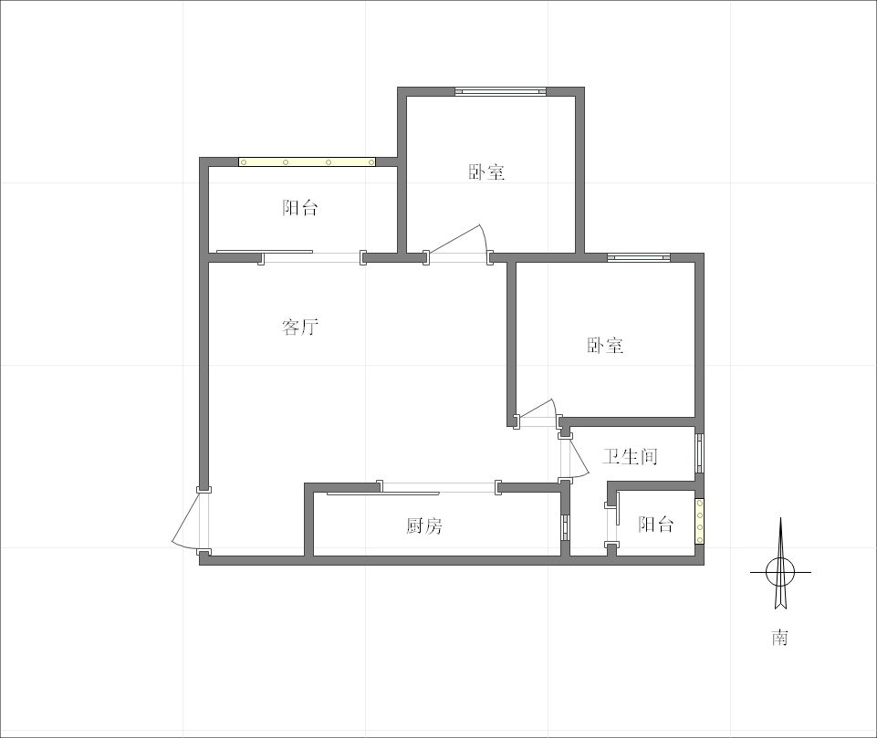
华仁·万有广场 2室2厅1卫 76平 精装
售价
41.5万元
约5460.53元/㎡
户型
2室2厅1卫
18/33层
建筑面积
76m²
--/--
朝向
朝南
精装
克而瑞好房评测 华仁·万有广场 2室2厅1卫 76平 精装
亮点综述
评测时间:2025年12月01日
该小区综合表现处于市场主流水平。小区容积率适中,绿化环境良好,整体居住密度控制得当,楼栋间距合理,内部环境整洁。物业服务能够履行基本职责,服务响应在可接受范围内。生活便利性方面,公共交通较为便捷,周边商业配套能够满足日常需求,医疗资源相对便利。市场口碑方面,业主评价总体中性,成交活跃度尚可,资产保值能力得到一定市场认可。
同小区其他在售房源
点评资讯
AI推荐理由
?
亮点综述
该小区综合表现处于市场主流水平。小区容积率适中,绿化环境良好,整体居住密度控制得当,楼栋间距合理,内部环境整洁。物业服务能够履行基本职责,服务响应在可接受范围内。生活便利性方面,公共交通较为便捷,周边商业配套能够满足日常需求,医疗资源相对便利。市场口碑方面,业主评价总体中性,成交活跃度尚可,资产保值能力得到一定市场认可。
户型信息
1室1厅1卫
建筑面积 54㎡
周边信息
