当前位置:
天泰钢城印象A区 3室2厅2卫 95.5平
售价
51万元
约5340.31元/㎡
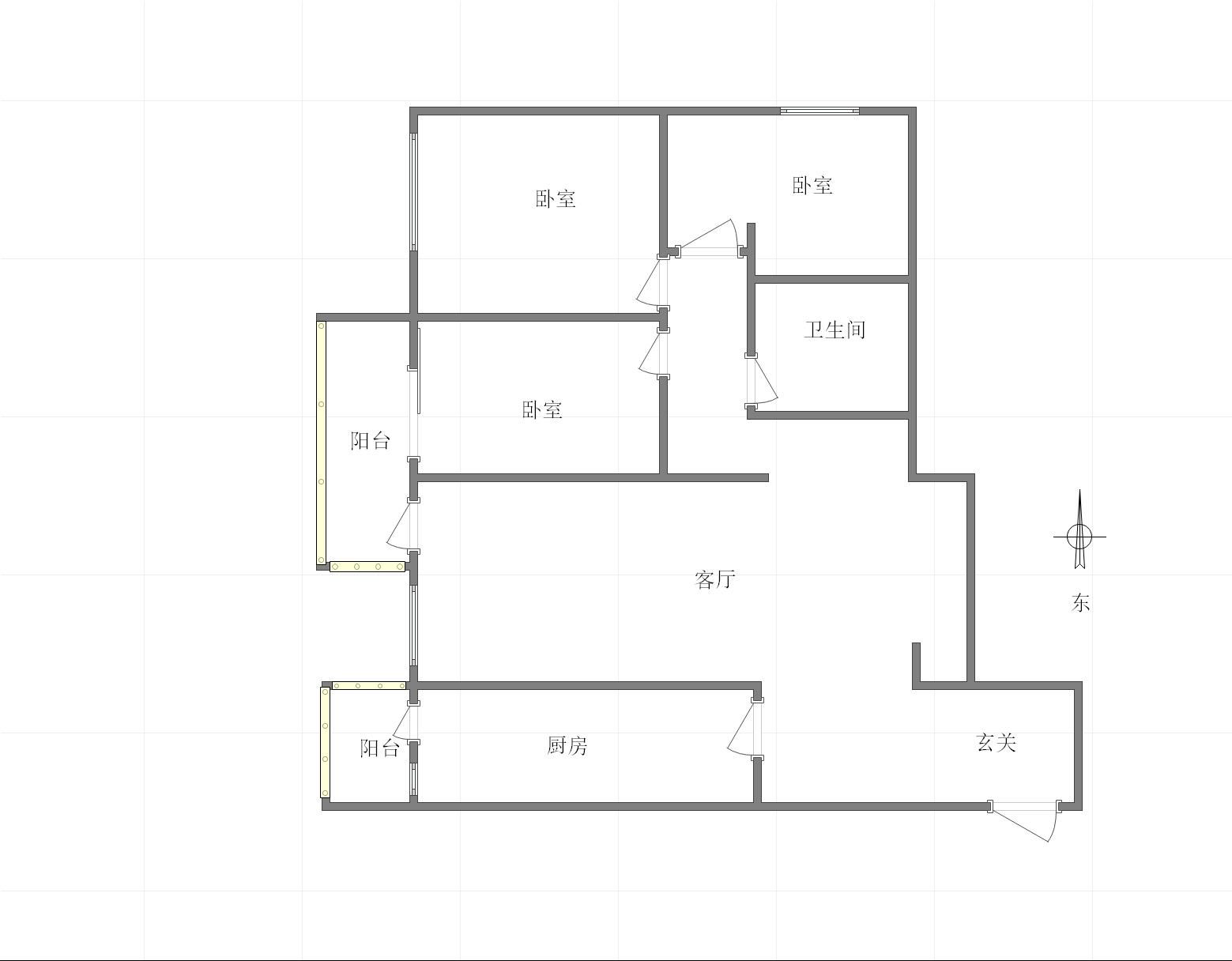
户型
3室2厅2卫
2/32层
建筑面积
95.5m²
--/--
朝向
朝南
毛坯
克而瑞好房评测 天泰钢城印象A区 3室2厅2卫 95.5平
亮点综述
评测时间:2025年12月01日
该小区综合表现处于市场主流水平。小区容积率适中,绿化环境良好,整体居住密度控制得当,楼栋间距合理,内部环境整洁。物业服务能够履行基本职责,服务响应在可接受范围内。生活便利性方面,公共交通较为便捷,周边商业配套能够满足日常需求,医疗资源相对便利。市场口碑方面,业主评价总体中性,成交活跃度尚可,资产保值能力得到一定市场认可。
同小区其他在售房源
加载更多 >>
AI推荐理由
?
亮点综述
该小区综合表现处于市场主流水平。小区容积率适中,绿化环境良好,整体居住密度控制得当,楼栋间距合理,内部环境整洁。物业服务能够履行基本职责,服务响应在可接受范围内。生活便利性方面,公共交通较为便捷,周边商业配套能够满足日常需求,医疗资源相对便利。市场口碑方面,业主评价总体中性,成交活跃度尚可,资产保值能力得到一定市场认可。
周边信息
