当前位置:
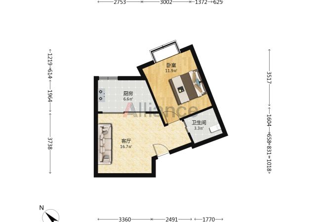
紫阳湖旁养老费房汇文新都D区 1室1厅1卫 51平 精装
售价
41万元
约8039.22元/㎡
户型
1室1厅1卫
9/25层
建筑面积
51m²
--/--
朝向
朝南
精装
克而瑞好房评测 紫阳湖旁养老费房汇文新都D区 1室1厅1卫 51平 精装
亮点综述
评测时间:2025年12月01日
该小区综合表现处于良好水平。小区容积率适中,绿化环境良好,楼栋布局合理,环境整洁度达标。物业公司能够履行日常保洁、安保、报修等基本职责,服务响应及时。生活便利性方面,小区周边公共交通网络覆盖良好,商业配套能满足日常采买需求,教育资源与医疗配套基本齐全。市场口碑方面,二手房成交价走势稳健,市场流通性良好,反映出市场认可度较高,是性价比较高的选择。
同小区其他在售房源
点评资讯
加载更多 >>
AI推荐理由
?
亮点综述
该小区综合表现处于良好水平。小区容积率适中,绿化环境良好,楼栋布局合理,环境整洁度达标。物业公司能够履行日常保洁、安保、报修等基本职责,服务响应及时。生活便利性方面,小区周边公共交通网络覆盖良好,商业配套能满足日常采买需求,教育资源与医疗配套基本齐全。市场口碑方面,二手房成交价走势稳健,市场流通性良好,反映出市场认可度较高,是性价比较高的选择。
周边信息
