当前位置:
总价200万买电梯叠拼大竹林金科·天元道一组团 160平
售价
200.6万元
约12537.50元/㎡
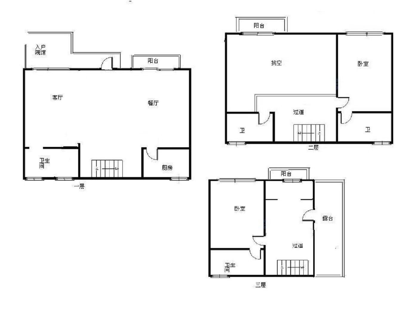
户型
5室3厅4卫
3/6层
建筑面积
160m²
--/--
朝向
朝南
毛坯
克而瑞好房评测 总价200万买电梯叠拼大竹林金科·天元道一组团 160平
亮点综述
评测时间:2025年12月01日
该小区综合表现属于市场主流中的良好水平。小区容积率适中,绿化环境良好,楼栋布局合理,公共空间充足,内部园林绿化环境整洁。物业服务水平达到市场主流标准,服务团队专业高效,能及时响应业主需求。生活便利性表现突出,公共交通网络发达,商业配套完善,教育资源与医疗资源相对丰富,能够满足居民的日常需求。市场口碑呈现中性偏正面态势,展现出一定的保值能力和市场流通性,获得了较好的市场认可度。
点评资讯
AI推荐理由
?
亮点综述
该小区综合表现属于市场主流中的良好水平。小区容积率适中,绿化环境良好,楼栋布局合理,公共空间充足,内部园林绿化环境整洁。物业服务水平达到市场主流标准,服务团队专业高效,能及时响应业主需求。生活便利性表现突出,公共交通网络发达,商业配套完善,教育资源与医疗资源相对丰富,能够满足居民的日常需求。市场口碑呈现中性偏正面态势,展现出一定的保值能力和市场流通性,获得了较好的市场认可度。
户型信息
2室1厅2卫
建筑面积 97.94㎡
周边信息
