当前位置:
65.5万买悦来次新精装3房 首地江山赋阅山道
售价
65.5万元
约6557.87元/㎡
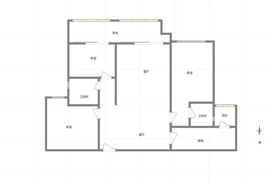
户型
3室2厅2卫
19/26层
建筑面积
99.88m²
--/--
朝向
朝南
精装
克而瑞好房评测 65.5万买悦来次新精装3房 首地江山赋阅山道
亮点综述
评测时间:2025年12月01日
该小区综合表现处于市场主流中的良好水平。小区容积率适中,绿化环境良好,能保障基本的楼间距与公共活动空间。物业服务水平较高,团队能履行日常保洁、安保、报修等基本职责。生活便利性方面,小区周边公共交通网络较为发达,商业配套能满足日常采买需求,教育资源与医疗资源相对完善。市场口碑方面,二手房成交价涨幅与区域大盘基本持平,成交活跃度尚可,整体呈现中性偏正面的市场评价。
加载更多 >>
AI推荐理由
?
亮点综述
该小区综合表现处于市场主流中的良好水平。小区容积率适中,绿化环境良好,能保障基本的楼间距与公共活动空间。物业服务水平较高,团队能履行日常保洁、安保、报修等基本职责。生活便利性方面,小区周边公共交通网络较为发达,商业配套能满足日常采买需求,教育资源与医疗资源相对完善。市场口碑方面,二手房成交价涨幅与区域大盘基本持平,成交活跃度尚可,整体呈现中性偏正面的市场评价。
周边信息
