当前位置:
95万买江北嘴大平层 次新房 鲁能星城外滩天景
售价
95万元
约7218.30元/㎡
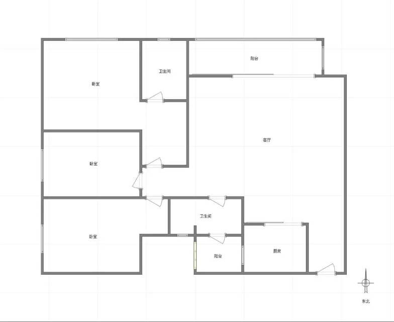
户型
3室2厅2卫
10/33层
建筑面积
131.61m²
--/--
朝向
朝南
毛坯
克而瑞好房评测 95万买江北嘴大平层 次新房 鲁能星城外滩天景
亮点综述
评测时间:2025年12月01日
该小区综合表现处于市场主流中的良好水平。小区容积率适中,绿化环境基本达标,整体居住密度控制合理,能够提供一定的公共活动空间。物业服务能够履行日常保洁、安保和维修等基本职责,响应速度在可接受范围内。生活便利性方面,公共交通网络覆盖尚可,周边基础商业配套能满足日常采购需求,教育资源与医疗配套相对完善。市场口碑方面,二手房成交价年涨幅与区域大盘基本持平,成交套数在板块内排名中等,反映出市场认可度尚可,是预算有限下的务实选择。
加载更多 >>
AI推荐理由
?
亮点综述
该小区综合表现处于市场主流中的良好水平。小区容积率适中,绿化环境基本达标,整体居住密度控制合理,能够提供一定的公共活动空间。物业服务能够履行日常保洁、安保和维修等基本职责,响应速度在可接受范围内。生活便利性方面,公共交通网络覆盖尚可,周边基础商业配套能满足日常采购需求,教育资源与医疗配套相对完善。市场口碑方面,二手房成交价年涨幅与区域大盘基本持平,成交套数在板块内排名中等,反映出市场认可度尚可,是预算有限下的务实选择。
周边信息
