当前位置:
急!急!急!地铁旁,叠拼别墅下叠,产权清晰,特价急售
售价
480万元
约20083.68元/㎡
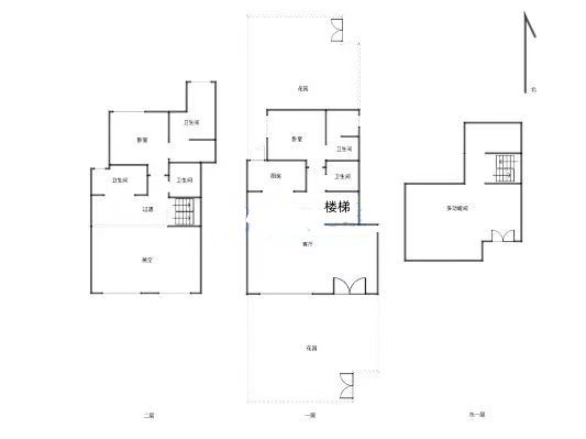
户型
4室2厅3卫
1/5层
建筑面积
239m²
--/--
朝向
朝南
毛坯
克而瑞好房评测 急!急!急!地铁旁,叠拼别墅下叠,产权清晰,特价急售
亮点综述
评测时间:2025年12月01日
该小区综合表现处于市场主流水平。小区容积率适中,绿化环境良好,整体居住密度控制得当,楼栋间距合理,内部环境整洁。物业服务能够履行基本职责,服务响应在可接受范围内。生活便利性方面,公共交通较为便捷,周边商业配套能够满足日常需求,医疗资源相对便利。市场口碑方面,业主评价总体中性,成交活跃度尚可,资产保值能力得到一定市场认可。
同小区其他在售房源
加载更多 >>
AI推荐理由
?
亮点综述
该小区综合表现处于市场主流水平。小区容积率适中,绿化环境良好,整体居住密度控制得当,楼栋间距合理,内部环境整洁。物业服务能够履行基本职责,服务响应在可接受范围内。生活便利性方面,公共交通较为便捷,周边商业配套能够满足日常需求,医疗资源相对便利。市场口碑方面,业主评价总体中性,成交活跃度尚可,资产保值能力得到一定市场认可。
户型信息
周边信息
